Doppelhaus im Bauhausstil ohne Keller, schmal

Typ Doppelhaus
Referenz 4202
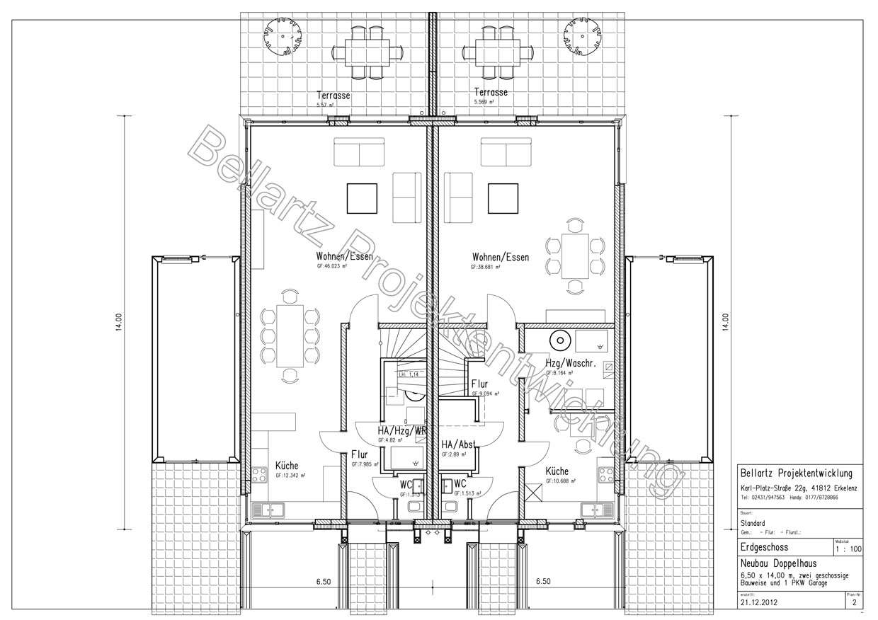
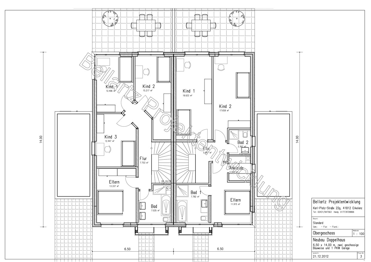
Objektbeschreibung Stadthausvilla im Bauhausstil ohne Keller und mit Garage
Abmessung der Standard Zeichnung pro Hälfte: Außenmaße: 6,50x14,00m
Kaufpreis auf Anfrage!
Ausstattung Das Haus umfasst eine gehobene Ausstattung.
Bei Anfragen erhalten Sie eine komplette Baubeschreibung
Abbildungen Vorschau Vorschau Vorschau Vorschau Vorschau
Wohnfläche: 138
Nutzfläche: 4
Zimmer:
Badezimmer: 2
Gäste-WC: 1
Terrase: Ja
Balkon: Ja
Keller: Nein
Garage: 1
Stellplatz: 0
Heizungsart: Gas/Solar