Einzelhaus im Mediteranen Stil, normal

Typ Einzelhaus
Referenz 4102
Objektbeschreibung Stadthausvilla im Bauhausstil und mit Garage
Abmessung der Standard Zeichnung: 10,00x12,00m
Kaufpreis auf Anfrage!
Ausstattung Das Haus umfasst eine gehobene Ausstattung.
Bei Anfragen erhalten Sie eine komplette Baubeschreibung
Abbildungen Vorschau Vorschau Vorschau Vorschau Vorschau
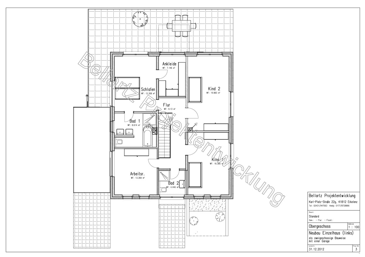
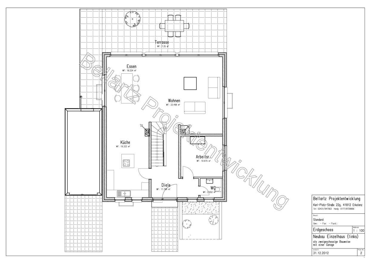
Wohnfläche: 222
Nutzfläche: 65
Zimmer: 6
Badezimmer: 2
Gäste-WC: 1
Terrase: Ja
Balkon: Nein
Keller: Ja
Garage: 1
Stellplatz: 1
Heizungsart: Gas/Solar