Einzelhaus im Bauhausstil Fashion, normal

Typ Einzelhaus
Referenz 4101
Objektbeschreibung Stadthausvilla im Bauhausstil Fashion mit Garage
Abmessung der Standard Zeichnung: 10,00x12,00m
Kaufpreis auf Anfrage!
Ausstattung Das Haus umfasst eine gehobene Ausstattung.
Bei Anfragen erhalten Sie eine komplette Baubeschreibung
Abbildungen Vorschau Vorschau Vorschau Vorschau Vorschau
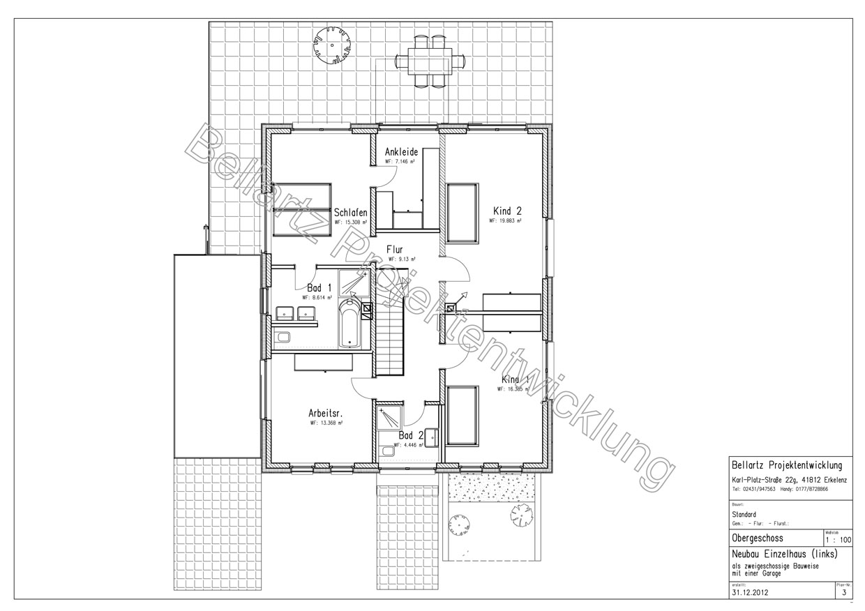
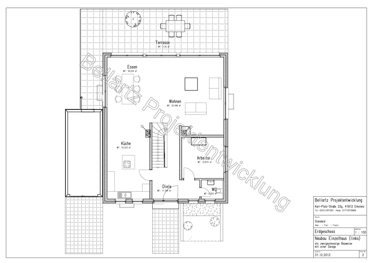
Wohnfläche:
Nutzfläche:
Zimmer:
Badezimmer: 2
Gäste-WC: 1
Terrase:
Balkon:
Keller: Ja
Garage: 1
Stellplatz: 0
Heizungsart: Gas